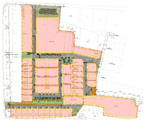
Aménagement du lotissement « Domaine des bruyères », composé de 22 lots libres et de 12 macro-lots soit 143 logements.
Création de voiries d'accès, de trottoirs, de places de stationnement et d'aménagements paysagers.
Gestion des eaux pluviales du site par tamponnement.
Viabilisation du site.
